
立面図

敷地配置図・各階平面図

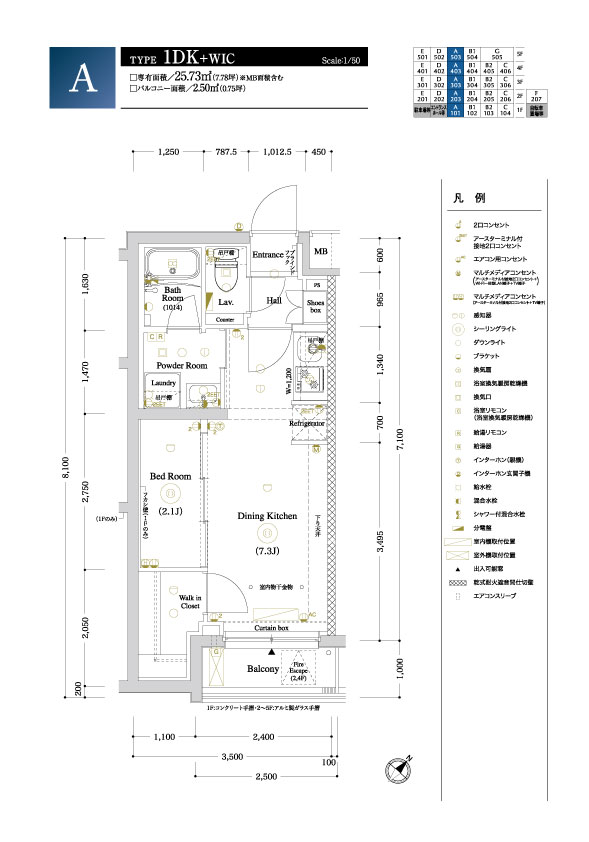
間取り図詳細
間取り詳細は下記タイプをクリックしてご確認ください。
| タイプ | 専有面積 | バルコニー面積 | ||
| A | ||||
|---|---|---|---|---|
| A | 1DK+WIC |
25.73m2 |
2.50m2 |
間取り詳細 |
| B1・B2 | ||||
| B1・B2 | 1K |
25.73m2 |
2.30・2.50m2 |
間取り詳細 |
| C | ||||
| C | 1DK |
25.66m2 |
2.07m2 |
間取り詳細 |
| D | ||||
| D | 1DK |
25.54m2 |
2.65m2 |
間取り詳細 |
| E | ||||
| E | 1DK+WIC |
26.10m2 |
2.60m2 |
間取り詳細 |
| F | ||||
| F | Studio |
25.97m2 |
2.50m2 |
間取り詳細 |
図面集をご覧になる際の注意事項
- 図面及び建築・仕上概要に関しては、諸官庁の指導及び施工上の都合上、設備・仕上等一部変更になる場合がありますので予めご了承ください。
- 本図面集に記載されている各間取図の単位はすべてミリメートルで表示してあります。
- 建築基準法によりサッシは網入ガラス、網入型ガラスまたは型ガラスとなるところがありますので、予めご了承ください。
- 柱型・梁型、下り天井等の形状については、階数により異なる場合がありますので、予めご了承ください。
- 専有面積には、住戸内MB(メーターボックス)面積・PS(パイプスペース)面積が含まれます。
- 専有面積は建築基準法による壁芯計算で算出されているため、内法計算で算出される登記簿面積とは若干異なります。また、MB(メーターボックス)・PS(パイプスペース)は登記簿面積には含まれません。
- すべての面積は壁芯計算で算出、また、坪表示については1㎡=0.3025坪で換算し、それぞれ小数点第3位以下は切り捨てしています。
- 居室の帖数表示については1帖=1.62㎡で換算し、小数点第2位以下は切り捨てしています。
- 施工上都合により、設計・仕様・外構等に変更が生じる場合がありますので、予めご了承ください。
- 各タイプ共、階によっては、柱の太さが多少相違する場合があります。
- 掲載されている縮尺・方位等は、トレースおよび印刷の過程で多少の誤差が生じる場合がありますので、詳細は設計図書にてご確認ください。
- 廊下およびバルコニーの形状につきましては各階平面図も合わせてご参照ください。
- タイプによっては住戸内の窓に面格子・手摺が付く場合があります。(外壁に面する腰窓には手摺が設置される場合があります。)
- タイプや階数により断熱材等の位置が異なる場合があります。
- 設備記号については、実際の取付位置と若干異なる場合があります。
- 窓の形状・厚さが異なる場合がありますので、詳細につきましては、担当にお問い合わせください。
- 設備用の点検口がつくところがあります。
- 間取図中の- - -は、梁型、下り天井等を表します。
- 外壁・廊下等に雨樋が設置されますが、図面上省略してあります。
- 現況を優先します。
- その他ご不明な点につきましては、担当にお問い合わせください。


